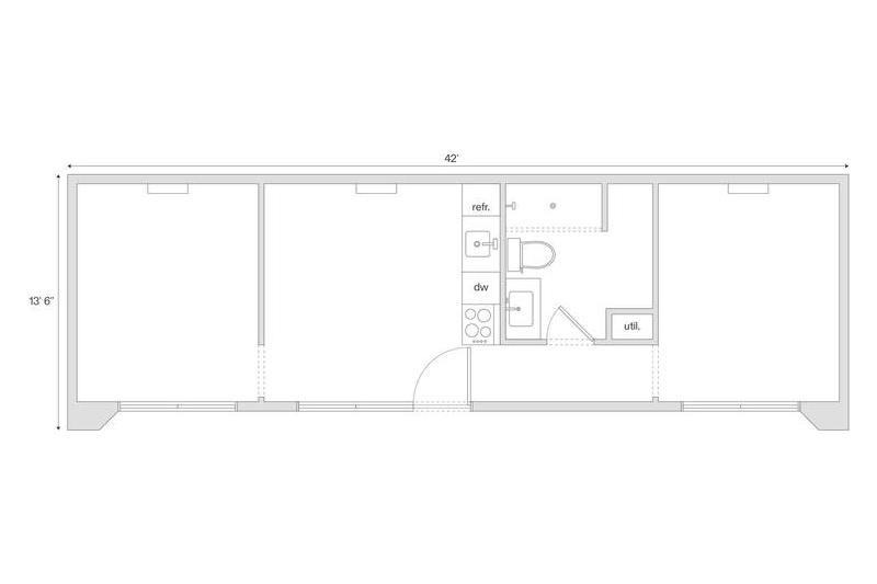
The Hacienda is big enough to accommodate any use, layout or living arrangement. This two- or 3 bedroom floor plan includes every feature of the one-bedroom unit and more. The Hacienda is truly made to meet your vision. All-in pricing starts at $119,000 and includes delivery to your backyard, then our Incablock Certified Installer will get you everything from permits to installation.

TiniBnB House Hacienda

It has more flexibility than any other model, allowing you to create the ideal home without compromise. The Hacienda is truly made to meet your vision. All-in pricing starts at $119,000 and includes delivery to your backyard, then our Incablock Certified Installer will get you everything from permits, sitework, water line, sewer, internet, installation, post-install touchup, site cleanup, plus much more —

See whether your property qualifies